Veřejná zakázka: Věznice Plzeň - oprava místnosti varny

Informace o veřejné zakázce

fáze zadávacího řízení Zadáno (v archivu)
Zakázka byla zadána.
DBID: 6193
Systémové číslo: P18V00000002
Datum zahájení: 02.01.2018
Nabídku podat do: 19.01.2018 14:00

Název, druh veřejné zakázky a popis předmětu

  • Název: Věznice Plzeň - oprava místnosti varny
  • Druh veřejné zakázky: Stavební práce

Stručný popis předmětu:
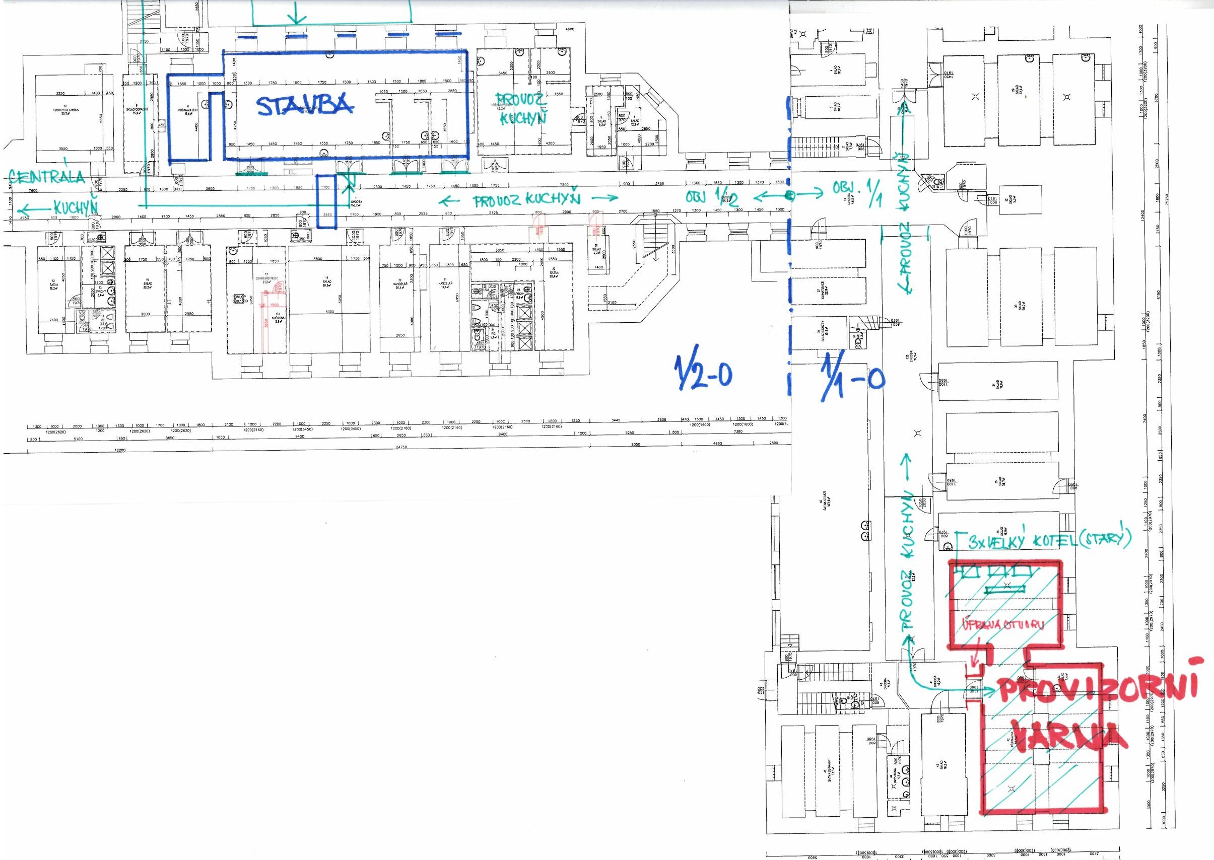
Jedná se o opravu místnosti varny velkokapacitní kuchyni věznice. mj. zhotovení výrobní dokumentace , zajištění dočasného prostoru pro kotle a kompletní opravy technologických rozvodů a stavebních konstrukcí v místnosti varny. Detailnější informace jsou obsaženy v zadávací dokumentaci.
Prohlídka místa plnění je jednou z podmínek podání nabídky.

Postup zadání, předpokládaná hodnota

  • Postup: VZMR s uveřejněnou výzvou
  • Režim veřejné zakázky: VZ malého rozsahu
  • Předpokládaná hodnota: neuvedena

Zadavatel

  • Úřední název: Vězeňská služba České republiky
  • IČO: 00212423
  • Poštovní adresa:
    Soudní 1672/1a, P.O.Box 3, Praha 4, PSČ 140 67
  • Název odboru: Věznice Plzeň
  • Id profilu zadavatele ve VVZ: 230536

Adresa kontaktního místa

Nabídky, resp. žádosti o účast podávat na:
prostřednictvím elektronického nástroje E-ZAK (https://ezak.vscr.cz)

Kontakt

Položky předmětu (CPV)

Zadávací dokumentace

Vysvětlení, doplnění, změny zadávací dokumentace

Hodnocení nabídek

Veřejné dokumenty

Formuláře

URL odkazy